Вимірювання та якість електроенергії
Промислова автоматизація та керування
Каталог товарів
Модульні шафи
Корпус розподільчий IDE GOLD, 1×12 модулів, прозорі двері, IP40
Артикул: GPE12PT/PH/RR
В наявності
1437 грн
Замовлення кратне 1-му
Купити У кошику
Купити в 1 клік
Доставка
Оплата
Гарантія та умови повернення
Самовивіз з нашого складу
безкоштовно
«Новою поштою» по Україні
за тарифами перевізника
 Кур'єром до дверей
від 70 грн.
Кредитною карткою
Розрахунковий рахунок
Повернення товару протягом 14 днів
Опис
Характеристики
Документи

Розподільний щит для прихованого встановлення від відомого іспанського виробника IDE з прозорими дверцятами для пристроїв до 125A. Радіус відчинення дверцят - 180 градусів, з можливістю перевісити праворуч або ліворуч, без демонтажу кришки.

Дизайн шафи має прямі та чіткі лінії, що робить його дуже стильним і дозволяє вписуватись в будь-який інтер'єр.

Спроектований під встановлення низьковольтних модульних пристроїв. Наприклад, автоматичних вимикачів, реле, пристроїв захисного відключення, диференціальних вимикачів, контакторів, або будь-якого іншого обладнання.

Щиток може використовуватися для розподілу електроенергії, напругою до 1000 В змінного струму або 1500 В постійного струму.

Технічні характеристики:

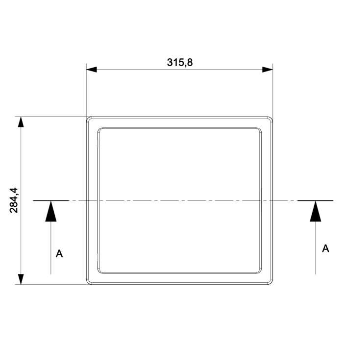
  • Зовнішні розміри (Висота х Ширина х Глибина): 284x316x97 мм
  • Розміри зазору для прихованого монтажу (ВхШхГ): 256x288x72 мм
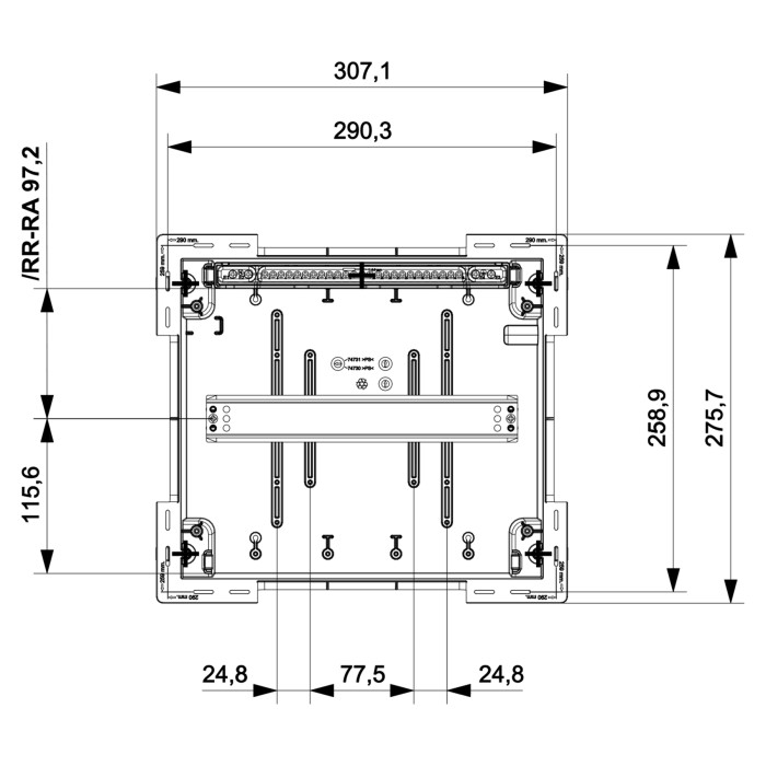
  • Кількість модулів: 1х12 DIN-рейка
  • Встановлення: приховане встановлення в порожнисті стіни
  • Колір: RAL 9003
  • Вікно: Прозоре
  • Вага (кг):1,32
  • Кабельні вводи: Знизу: 1xM50/M40 4xM25/M20 5xM25/M16 - Ззаду: 2xM40/M32 4xM25 - Зліва: 2xØ32 - Праворуч: 2xØ32
  • Перетини кабелю:  6x(2,5-6 mm2)+6x(4-10 mm2)+1x(10-25 mm2)+1x(16-35 mm2)
  • Матеріали: Безгалогенні пластикові матеріали. Основа: V0 PS. Каркас: ABS
  • Матеріал кришки-вікна-дверей: тонований пластик
  • Ступінь захисту: IP40
  • Стійкість до ударів: IK08
  • Стійкість до розжарювання: 850 ºC
  • Випробування тиску кульки: 70 ºC
  • Діапазон температур навколишнього середовища: -25 ºC / +40 ºC
  • Максимальна робоча напруга: 1000 В змінного струму / 1500 В постійного струму
  • Номінальний струм: 125А
  • Подвійна ізоляція: Клас II

Сертифікати та стандарти:

  • Директива :2014/35/EU
  • Стандарти: IEC 62208, IEC 61439-1

Поставляється в індивідуальній картонній упаковці у комплект постачання щита входить:

  • Латунні затискачі РЕ + N
  • Модульні заглушки
  • DIN-рейки з фіксацією до цокольної частини корпусу із достатнім простором для кабелю

Характеристики
Бренд :
IDE
Кількість модулів :
12 шт
Спосіб монтажу :
Вбудований
Висота :
284 мм
Ширина :
316 мм
Глибина :
97 мм
Ступінь захисту :
IP40
Матеріал корпусу :
Пластик
Серія :
GOLD
Тип дверцят :
Прозорі
Колір :
RAL 9003 (Білий)
Клас ізоляції :
Class II
Вага :
1.38 кг
Температура експлуатації :
-25...+40 °C
Країна походження :
Іспанія
Країна реєстрації бренду :
Іспанія
Максимальна робоча напруга :
1000 (змінного струму) / 1500 (постійного струму) В
Номінальний струм :
125 А
Тип :
Щит
Дивіться також
Відгуки (0)
Написати відгук
Переглянуті товари
Астрономічне реле Klemsan MEASTRO 221
Артикул: 0.0.0.2.70703
8132 грн
Котушка 48V AC для CNN 100
Артикул: VCC100CA
1145 грн
Шинотрмичі
Трансформатори струму
Wave Plus
Тримачі запобіжників