Вимірювання та якість електроенергії
Захист та комутація електромереж
Промислова автоматизація та керування
Каталог товарів
Модульні шафи
Корпус розподільчий IDE GOLD, 1×18 модулів, прозорі двері, IP40
Артикул: GPE18PT/PH/RR
В наявності
1745 грн
Замовлення кратне 1-му
Купити У кошику
Купити в 1 клік
Доставка
Оплата
Гарантія та умови повернення
Самовивіз з нашого складу
безкоштовно
«Новою поштою» по Україні
за тарифами перевізника
 Кур'єром до дверей
від 70 грн.
Кредитною карткою
Розрахунковий рахунок
Повернення товару протягом 14 днів
Опис
Характеристики
Документи

Розподільний щит для прихованого встановлення від відомого іспанського виробника IDE з прозорими дверцятами для пристроїв до 125A. Радіус відчинення дверцят - 180 градусів, з можливістю перевісити праворуч або ліворуч, без демонтажу кришки.

Дизайн шафи має прямі та чіткі лінії, що робить його дуже стильним і дозволяє вписуватись в будь-який інтер'єр.

Спроектований під встановлення низьковольтних модульних пристроїв. Наприклад, автоматичних вимикачів, реле, пристроїв захисного відключення, диференціальних вимикачів, контакторів, або будь-якого іншого обладнання.

Щиток може використовуватися для розподілу електроенергії, напругою до 1000 В змінного струму або 1500 В постійного струму

Технічні характеристики:

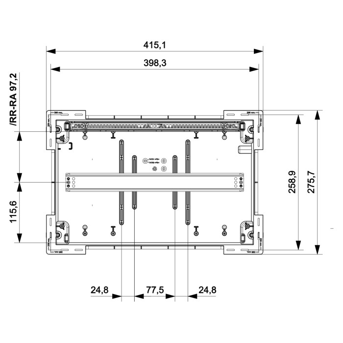
  • Зовнішні розміри (Висота х Ширина х Глибина): 284x424x97 мм
  • Розміри зазору для прихованого монтажу (ВхШхГ): 256x396x72 мм
  • Кількість модулів: 1х18 DIN-рейка
  • Встановлення: приховане встановлення в порожнисті стіни
  • Колір: RAL 9003
  • Вікно: Прозоре
  • Вага (кг):1,89
  • Кабельні вводи: Знизу: 1xM50/M40 7xM25/M20 8xM25/M16 - Ззаду: 2xM40/M32 4xM25 - Зліва: 2xØ32 - Праворуч: 2xØ32
  • Перетини кабелю: 8x(2,5-6 мм2)+8x(4-10 мм2)+1x(10-25 мм2)+1x(16-35 мм2)
  • Матеріали: Безгалогенні пластикові матеріали. Основа: V0 PS. Каркас: ABS
  • Матеріал кришки-вікна-дверей: тонований пластик
  • Ступінь захисту: IP40
  • Стійкість до ударів: IK08
  • Стійкість до розжарювання: 850 ºC
  • Випробування тиску кульки: 70 ºC
  • Діапазон температур навколишнього середовища: -25 ºC / +40 ºC
  • Максимальна робоча напруга: 1000 В змінного струму / 1500 В постійного струму
  • Номінальний струм: 125А
  • Подвійна ізоляція: Клас II

Сертифікати та стандарти:

  • Директива :2014/35/EU
  • Стандарти: IEC 62208, IEC 61439-1

Поставляється в індивідуальній картонній упаковці у комплект постачання щита входить:

  • Латунні затискачі РЕ + N
  • Модульні заглушки
  • DIN-рейки з фіксацією до цокольної частини корпусу із достатнім простором для кабелю

Характеристики
Бренд :
IDE
Вага :
1.89 кг
Виробник :
IDE ELECTRIC, S.L.
Висота :
284 мм
Глибина :
97 мм
Кількість модулів :
18 шт
Клас ізоляції :
Class II
Колір :
RAL 9003 (Білий)
Країна походження :
Іспанія
Країна реєстрації бренду :
Іспанія
Максимальна робоча напруга :
1000 (змінного струму) / 1500 (постійного струму) В
Матеріал корпусу :
Пластик
Номінальний струм :
125 А
Серія :
GOLD
Спосіб монтажу :
Вбудований
Ступінь захисту :
40 IP
Температура експлуатації :
-25...+40 °C
Тип :
Щит
Тип дверцят :
Прозорі
Ширина :
424 мм
Дивіться також
Відгуки (0)
Написати відгук
Переглянуті товари
Перемикач Vector VS S5F 3P+N 160A
Артикул: S5F01603NS0
10474 грн
F14EVXYYYXCO Вольтметр 90°, вхід 440/110В, шкала 500В
Артикул: F14EVXYYYXCO
Очікується
Маркування KE Klemsan 3 символ "С" жовте
Артикул: 0.0.0.5.19012
320 грн
Перемичка гвинтова Klemsan UK 4
Акція
Перемичка гвинтова Klemsan UK 4
Артикул: 0.0.0.4.74154
151 грн
Шкала амперметра FRER ZF 25/5A
Артикул: ZF72EAX025X05
196 грн
Шкала амперметра FRER ZF 250/5A
Артикул: ZF52EAX250X05
Очікується
Трансформатори струму
Wave Plus
Тримачі запобіжників
Контактори